建物診断

- 建物は、時間が経つにつれて、様々なところが痛んできます。そこで定期的な健康診断を行い、早めに建物の状態を把握し手を加えることで、健康な状態を維持し建物の寿命を延ばすことができます。
- 建物の耐用年数は、RC造で60年程度とされていますが、個別の建築部位や建築設備の耐用年数は短く、一般的には15~20年サイクルで大規模修繕時期がやってきます。
- 先ずは現状の建物の状態(劣化状況、耐震性能、エネルギー消費状況)を正確に把握をすることが必要です。
- 今後の使用年数、使用形態(所有、賃貸)、出口戦略(建替え、売却)等についても事前検討が必要です。
- 上記の様な個人の生活設計、企業経営に大きく影響する建物の運用判断に対し適切な判断材料を提供します。
建物診断の内容を以下に詳細にご説明致します。
1.建物基本診断
建物診断は対象建物の状況に応じて、劣化診断、耐震診断、省エネ診断等幾つかの診断を組合わせて実施しますので、先ずは建物基本診断で建物概要を把握し、建物詳細診断内容を決定します。
建物基本診断の内容
- 契約内訳書、竣工図面、維持管理記録等を調査・照合し、建物の概要と履歴を把握します。
- 建物外観目視調査(写真撮影・調査記録等)と関係者(所有者、管理者等)へのヒアリングから建物詳細診断の必要性を判定し、診断計画及び費用について提案します。
劣化基本診断(予備診断)
- 屋上防水劣化状況、外装材のひび割れ・劣化状況、及び設備機器・配管の劣化状況について予備診断表を作成し、詳細診断作業の要否を判定します。
耐震基本診断(予備診断)
- 1981年以前の旧耐震設計基準で建てられた建物構造、及び仕上げ・設備機器の耐震性能について予備診断表を作成し、詳細診断作業の要否を判定します。
省エネ基本診断(予備診断)
- 毎月のエネルギー消費データ把握、設備のウォークスルー調査等により建物全体のエネルギーに関する概要を把握し、予備診断表を作成し、詳細診断作業の要否を判定します。
2.劣化詳細診断
- 劣化基本診断の結果により詳細な診断が必要と判断された場合に実施します。
- 建物の各部位、材料、設備機器等が、どの程度劣化しているかを詳細に把握します。又、人身事故につながる外壁の落下可能性、防災設備・防犯セキュリティシステムの機能・性能、及び、現行の法規との適合性等の確認も行います。
- 機能測定や材料試験等、診断機器を使用して詳細な調査・分析を行います。
- 建築仕上では、屋根・屋上の防水劣化調査、外装のひび割れ・剥離調査、タイル全面打診調査・付着力試験、鉄部の腐食調査等を行います。外部仕上(外壁・屋根)の調査にはドローンを使用し安全で精密な調査を実施します。

- RC造躯体では主にコンクリート強度試験、中性化試験、鉄筋の腐食度調査を含む構造診断が中心となります。

- 設備関係では、設備機器の劣化調査と共に配管の劣化度や配管内部のファイバースコープ調査等が行われます。

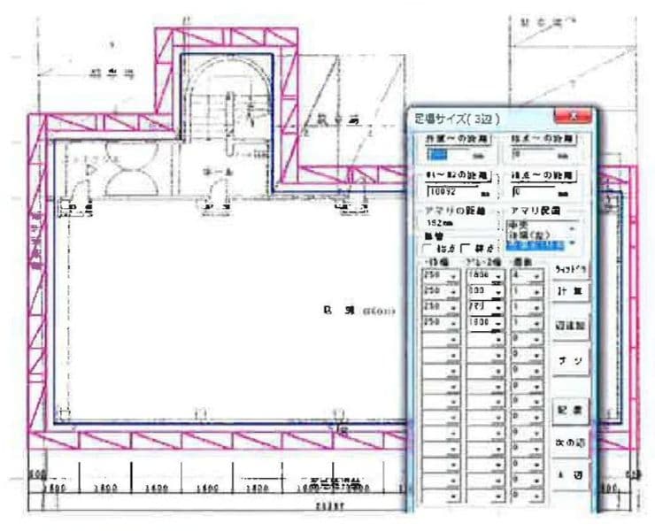
- 劣化詳細診断(建築外部仕上)では保管されている紙ベースの図面を基に、スキャンした図面に斜行補正、ノイズ除去、四点補正等の編集を行い調査用下図を作成します。

- 現地劣化詳細診断の結果を調査用下図に記入して、改修工事用図面を作成し、数量を自動積算します。

- 工事用足場計画も同時に自動作成し、提案用図面と労働基準監督署申請用図面を準備します。

ティスコ資料より
3.耐震詳細診断
耐震基本診断の結果により詳細な診断が必要と判断された場合に実施します。
地震時に建物の機能を損なうことの無い様に、耐震補強等事前対策の判断基準を作成します。
構造体の耐震診断
構造体の耐震性能は構造耐震指標(Is)で示されます。以下にRC造構造躯体の耐震診断内容について説明します。
1次診断(判定基準:構造耐震指標Is≧0.9) | 建物の保有強度を、主として柱や壁のコンクリートの水平断面積から計算します。壁破壊時・柱降伏時のせん断力係数で表した保有強度の略算値のみで耐震性能を評価します。 |
---|---|
2次診断(判定基準:構造耐震指標Is≧0.6) | 柱と壁については曲げ強度とせん断強度の両方を考慮します。コンクリート断面積のほかに主筋とせん断補強筋の断面積を考慮します。 |
3次診断(判定基準:構造耐震指標Is≧0.6) | 柱や壁だけでなく、梁や床スラブの強度も考慮します。終局強度・地震応答に関する技術も応用して建物の保有強度を算定します。 |
低次の診断において判定基準より十分な耐震性能を有していると判断された場合には、その時点で診断は打ち切ります。
耐震詳細診断1次~3次の特徴を整理比較すると下表の様になります。精度は低いがコストの掛からない1次診断から始めて精度は高いがコストが掛かる3次診断へと段階的に進めることで、対象建物に合ったコストパフォーマンスの高い診断を実施する事ができます。

非構造体(内外仕上)の耐震診断
地震発生時に非構造部材(内外仕上)の脱落、転倒等が防止され、人命の安全確保が図られている事,及び避難活動に重大な障害が生じない事を目標とします。
屋根・外壁仕上・建具 | 屋根材については、重量のある瓦による被害がほとんどですが、その他の屋根材についても地震時に脱落しないことを確認します。 外壁については、同じ仕上であれば取付方法は同じであると考え、確認できる場所で取付方法を調査し、部材に亀裂などの損傷や移動が発生した場合でも破損・脱落しないことを確認します。 建具については、地震時の変形により避難経路が確保できなくなることや,外部に面した建具の落下が考えられるので、現在の開閉状況,壁との取付状況を調査し破損・脱落しないことを確認します。 |
---|
間仕切壁・内部仕上 | 取付部分を確認し、地震時の層間変形に追従できることを確認します。H=5mを超える壁については,耐震性の配慮がされていることを確認します。 |
---|---|
天井仕上 | 天井は大規模にボードが落下した場合大きな被害が生じるので、仕様通り施工されていることを確認し、大規模に剥離・脱落はしないことを確認します。また、天井ふところが高い部屋については,振れ止めの設置が必要です。 |
非構造体(建築設備)の耐震診断
地震発生時に機器・水槽類の転倒・移動・落下等が無く、配管・ダクト・電線(電管・ラック等共)類の落下が無いことを目標とします。
機器・器具類 | 中・重量機器電線類の耐震支持、盤類・壁付機器・器具の下地強度、盤類等重心の高い機器の振れ止め、照明器具等軽量機器の振れ止め支持、機器・器具類の固定度をチェックして、転倒・落下しないことを確認します。 |
---|

配管・ダクト・電線類 | 配管・ダクト・電線類の支持間隔・耐震支持間隔、防振吊配管の管軸方向の振れ止め支持、エキスパンションジョイント部の配管・ダクト・電線類のフレキ・配線余長等をチェックして、衝突・落下しないことを確認します。 |
---|

4.省エネ詳細診断
基本診断の方針に従い、省エネルギー化計画の策定に際して、必要な建築、設備、室内環境などを詳細に調査します。
建物のエネルギー消費について、総合的な観点から判断し、お客さまにとって最も対応やすいと考えられるエネルギーの有効利用、及び環境負荷の軽減に最も効果的な省エネルギー提案を行います。
LCA・LCCO2 | 建設資材の生産から建設、運用、解体、廃棄に至るまでの建物の生涯(ライフサイクル)に渡る環境負荷について評価・分析して、環境負荷の少ない建物の実現を図ります。 日本でも2050年までにCO2排出量を0にする目標(カーボンニュートラル)が設定されました。個人・企業にとってCO2削減は身近な課題となってきました。 省エネ対策の検討に必要な消費エネルギー、ランニングコスト、CO2発生量等を計算し、対策案の比較・評価を行います。 |
---|

ESCO事業 | 一次エネルギー原単位を評価し、省エネ方法の抽出と効果の予測を行います。 省エネルギーに関する包括的なサービスを提供し、その結果得られる省エネルギー効果を保証する事業です。 |
---|

5.その他の診断(ご要望に応じてパートナー企業と協働で実施します)
環境診断
室内環境評価 | 室内空気質調査 シックハウス症候群の原因であるホルムアルデヒドやVOCの気中濃度を予測。 室内遮音性能診断 遮音等級(D値)とその遮音性能周波数特性を求める 室内環境 室内の温度・湿度・照度・臭気等の快適性の診断 |
---|---|
電磁波防止診断 | 電磁波による障害・情報漏洩防止・有効利用の観点から診断する。 |
環境影響調査 | アスベスト・PCB・土壌汚染、大気・騒音・振動・水質調査 |
機能診断
建物評価 | 利用者満足度調査、施設性能評価、執務空間評価 |
---|---|
防災診断 | 耐火性能・消火機能・避難経路・警報通報機能等を調査 |
防犯診断 | 玄関・通用口、居室出入口、窓、EV、建物周囲、駐車場等のセキュリティ状況、警備体制 |
情報化診断 | 情報基盤診断、運営支援システム診断、施設管理システム診断。設備関連施設診断 |
用途変更診断 | 用途変更の実現可能性を建物特性、法規制等から評価する。 |